Single Side Gate with Aluminium Frame | Flat Top
Single Side Gate with Aluminium Frame | Flat Top
Build Time: 5-6 weeks
Couldn't load pickup availability
Description
Description
Tekplas uPVC Side Gates can have an aliminmum frame for extra strength required on very wide gates only.
The offers excellent security. The PVC profiles are made from the high quality PVC and the aliminum frame is made form 25mm x 75mm box section.
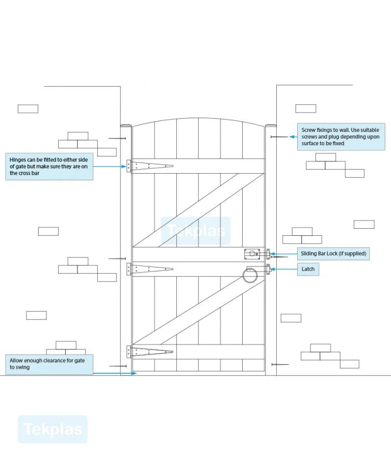
The gates will fit varying gaps between 1200mm to 1800mm wide and a standard height of 1800mm. These are supplied complete with hinges, latch and post if required, these gates can easily be fitted into an existing opening to enhance any home or garden. Or fitted to brick pillars or large wooden posts with the correct hinge type.
- Strong Rigid Construction
- Weatherproof
- Choice of Colours: White / Brown / Golden Oak / Dark Grey
- Easy Clean Wipeable Surface
- Maintenance Free
- Durable for Outdoor Use
We can supply different heights and bespoke sized gates should you have any bespoke requirements or areas you wish to use our Tekplas Side Gates please contact us
The side posts are 100mm x 100mm x 1830mm in height, pre-fitted with a snap-in slot cover to hide fittings and need to be secured to an existing wall or post.
The gates come complete with the following:
- Hinges and screws for fixing
- Door latch and screws for fixing
- Posts complete with end caps
How to measure your gap
We need to know the size of the gap you are filling when you order. We will manufacture the gate and posts to fill that gap, please measure the top, middle and bottom and give us the smallest distance.
You can add the distance to the note option at the ordering stage or email us your specific details.
If you need to set the posts in the ground again please leave in the note option at the ordering stage and we will leave the posts 300mm longer
Fitting:
- The hinges, latch and lock if selected will not be pre-fitted to the gate or posts
- The accuracy of the dimensions specified by you will reflect in the quality of fit.
- We recommend they are installed by a professional or skilled handy person
- Please call Customer Services should you experience any difficulties during installation
- We do not advise fitting 3rd party locks or latches etc, and cannot be held responsible if they cause fitting issues.
- Please be aware that plastic gates expand in the heat but do not expand when wet (unlike wooden gates) so the correct clearance is needed to ensure an all year round fit
Care Guide
Care Guide







FAQs
Are your gates fully assembled?
Our gates will come fully assembled. You will need a trusted gate fitter to install your gate for you along with your lock options.
How strong are your gates?
Our gates are just as strong as wooden gates, without the worry of rotting and material degrading.
Does the total gap include the posts?
Yes, it does.
The total gap is to include the 2 posts and the gate - so it is the gap you are trying to fill.
We recommend measuring your total gap top, middle and bottom and giving us the smallest
measurement.
We then take into account the 2 posts, gaps for clearance and the gate size.
Can I use existing posts?
Yes, you can use existing posts as long as they are in good condition. Please send an email
with a picture of the existing posts to info@tekplas.co.uk so we can double check.
Does the gate come with screws for fixing the posts?
No, the gate does not come with screws for fixing the posts as our products are fitted to so many different surface types.
What is included with the gate?
2 x posts, 2 x caps and 2 x door stop’s
1 x gate
Hinges (3 for singles and 6 for doubles) and 1 ring latch with screws for fixing
Can I hinge the gate from the left- or right-hand side?
Yes, you can. We do not drill any pilot holes for the hinges or latch so you can hinge the gate from the left- or right-hand side.
Can I fix the gate to open inwards or outwards?
Yes, you can. If fitting the gate to open inwards the hinges go on the back face of the gate, if fitting the gate to open outwards, the hinges go on the front face of the gate.